Back to results

Industrial Unit For Sale, Peterborough

Industrial Unit in Peterborough
Industrial Unit in Peterborough
Industrial Unit in Peterborough
Industrial Unit in Peterborough
POA

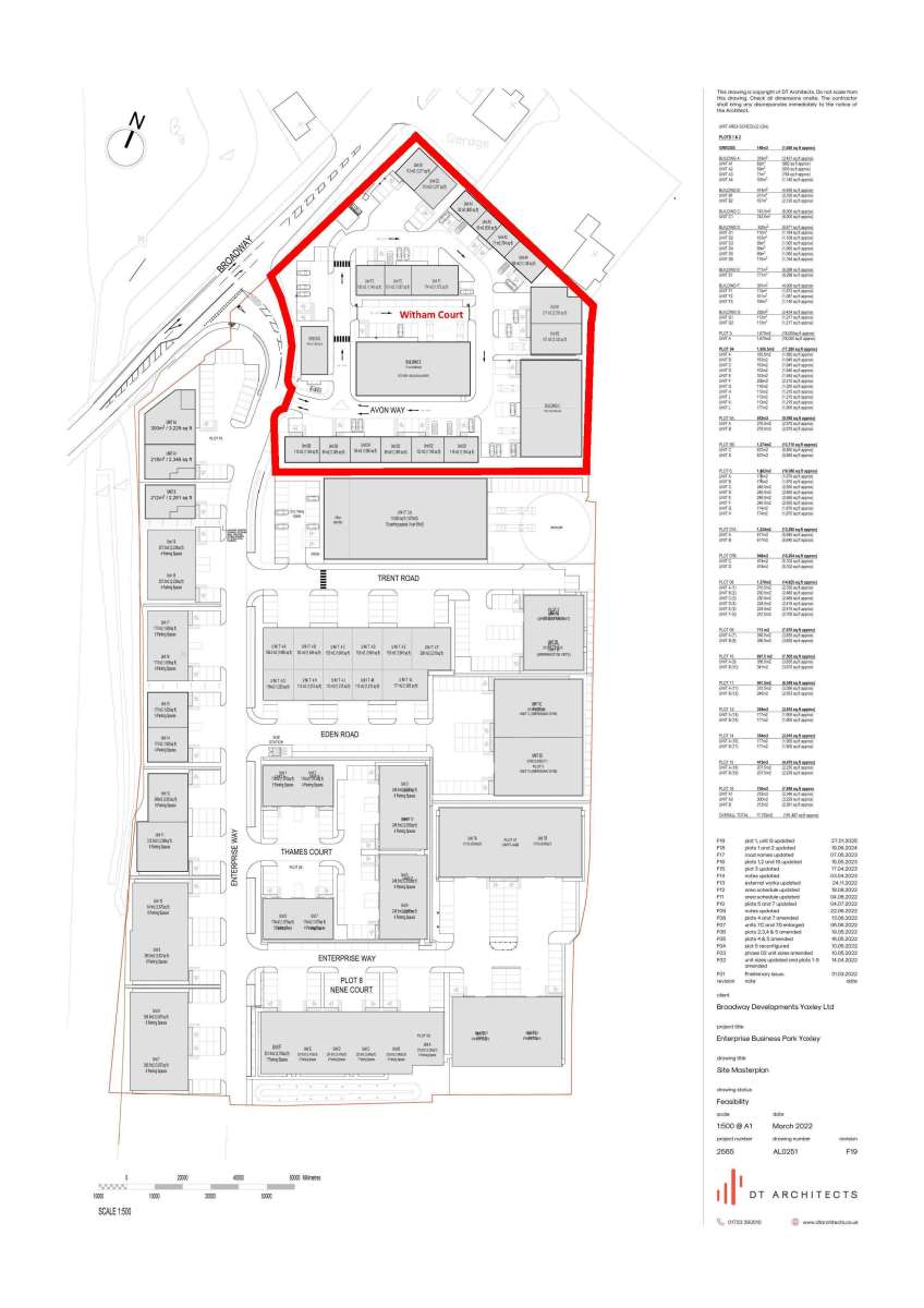
Witham Court, Peterborough, PE7 3WY

Type Industrial Unit
Status Available
Size 635 - 4,000 sq ft

Key Features

  • Located within popular Yaxley Development
  • High Quality Specification
  • Three Phase Power & Full Fibre Connection
  • Available November 2025
  • Units will be available towards the end of 2025.

Property Details

The site has direct access to Broadway and is located 3 miles from J16 of the A1(M) at Norman Cross with access to the Parkway dual carriageway road system around Peterborough which is approximately 2 miles to the northeast.

The site is serviced by a main bus route and is adjacent to the recently developed Eagle Business Park.

A New Industrial / Warehouse Development Situated On Broadway In Yaxley With A Current Total Of 46 Units. Witham Court Is The Final Phase Of The Development At Enterprise Park With Unit Sizes Ranging From 656 - 4,000 Sq Ft. The Units Will Have The Following :-
Steel Portal Frame Construction.
Each Unit Has An Office And Toilet.
Led Lighting.
Electric Loading Doors.
Car Parking.
Fibre Connection.
Available November 2025
Eddisons; Peterborough
Eddisons; Peterborough View all properties
Industrial Unit For Sale, Peterborough
POA

Witham Court, Peterborough, PE7 3WY

Industrial Unit · Available · 635 - 4,000 sq ft

Property ID: 135322

Send Enquiry
Eddisons; Peterborough
Eddisons; Peterborough View all properties

Make an Enquiry

Boxpod will only use your details to send an enquiry to the advertiser and prompt a response. By clicking Send Enquiry, you agree to Boxpod's Privacy Policy.

Make an Enquiry

Eddisons; Peterborough
Eddisons; Peterborough

Boxpod will only use your details to send an enquiry to the advertiser and prompt a response. By clicking Send Enquiry, you agree to Boxpod's Privacy Policy.

Call