Retail/Shop To Let, Derby
4 photos
£3,750 / month
£45,000 pa
8-9 Iron Gate, Derby, DE1 3FJ
Type
Retail/Shop
Status
Available
Size
10,152 sq ft
Key Features
- Can split subject to covenant and terms
- Prime position within Derby city centre
- Near Bear Coffee, Slug & Lettuce, Pizza Express
- Class E Use
- Suitable for Retail, restaurant, offices
Property Details
Description
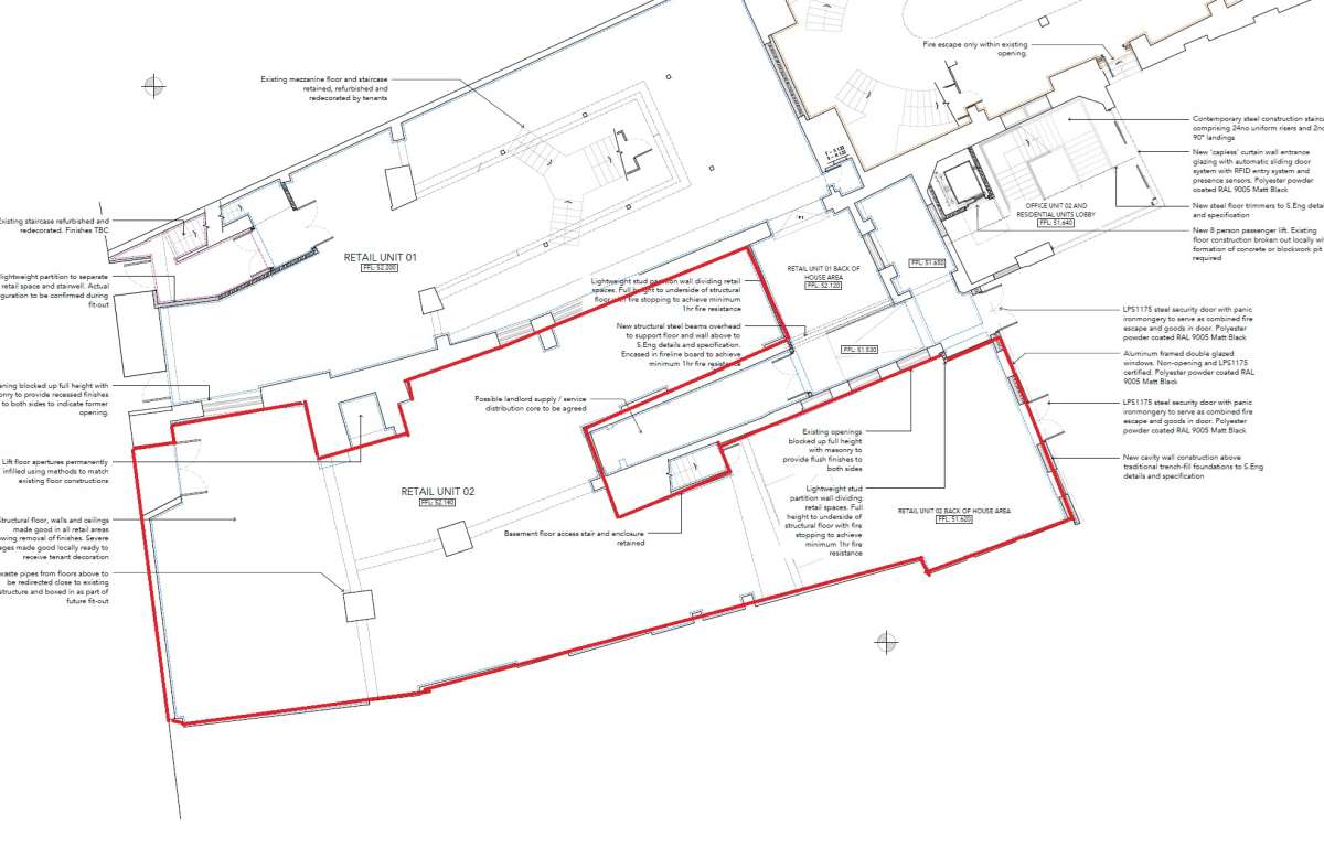
Prime Ground Floor Store In Cathedral Quarter. Suitable For Variety Of Uses. Floor Plan Showing Proposed Area To Be Let;
Blue Is Ground Floor Available To Let.
Yellow Is Optional First Floor Area + C6,000 Sq By Negotiation.
Red Is Landlord Retained Area.
There Is A Basement Providing An Additional 3,083 Sq Ft. Rents Are Subject To Covenant, Terms And Space Taken.
Vat
All Figures Are Quoted Exclusive Of Vat, We Are Advised The Property Is Registered For Vat.
Epc
The Last Epc Rating Was C(74).
Viewing
Please Contact Us Or Visit The Omeeto Website For Full Details And A Virtual Tour. Physical Viewings With Proceedable Parties Can Be Arranged On Request By Contacting Our Commercial Property Agents. Omeeto Do Not Take Any Responsibility For Any Loss Or Injury Caused Whilst Carrying Out A Site Visit.
Prime Ground Floor Store In Cathedral Quarter. Suitable For Variety Of Uses. Floor Plan Showing Proposed Area To Be Let;
Blue Is Ground Floor Available To Let.
Yellow Is Optional First Floor Area + C6,000 Sq By Negotiation.
Red Is Landlord Retained Area.
There Is A Basement Providing An Additional 3,083 Sq Ft. Rents Are Subject To Covenant, Terms And Space Taken.
Vat
All Figures Are Quoted Exclusive Of Vat, We Are Advised The Property Is Registered For Vat.
Epc
The Last Epc Rating Was C(74).
Viewing
Please Contact Us Or Visit The Omeeto Website For Full Details And A Virtual Tour. Physical Viewings With Proceedable Parties Can Be Arranged On Request By Contacting Our Commercial Property Agents. Omeeto Do Not Take Any Responsibility For Any Loss Or Injury Caused Whilst Carrying Out A Site Visit.
Location
Omeeto Ltd
View all properties
Make an Enquiry
Omeeto Ltd