Retail/Shop To Let Birmingham
PROPERTY ID: 147248
PROPERTY TYPE
Retail/Shop
STATUS
Available
SIZE
213 sq.ft
Key Features
Property Details
This opportunity is situated in a prime trading location in the heart of Birmingham's Central Business District on Colmore Row and the entrance to The Great Western Arcade. Approximately 50m from Snowhill station and St Philip's Square, nearby occupiers include; Sainsbury's, Kula Poke, Pret A Manger, Pasture, 200 Degrees Coffee, Blacklock and a variety of other premium food and beverage and retail businesses.
Location
This Opportunity Is Situated In A Prime Trading Location In The Heart Of Birmingham's Central Business District On Colmore Row And The Entrance To The Great Western Arcade. Approximately 50m From Snowhill Station And St Philip's Square, Nearby Occupiers Include; Sainsbury's, Kula Poke, Pret A Manger, Pasture, 200 Degrees Coffee, Blacklock And A Variety Of Other Premium Food And Beverage And Retail Businesses.
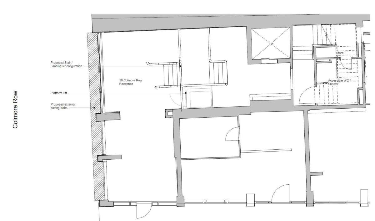
Description
The Premises Are Situated In An Extremely Prominent Position On The Entrance To Great Western Arcade. The Unit Will Be Extended And Benefit From Two Entrances, One Of Which Will Offer Direct Access To The Office Tenants In 10 Colmore Row Into The Premises Providing A Dedicated Customer Base.
Tenure Comments
The Accommodation Is Available By Way Of New Fully Repairing And Insuring Lease On Terms To Be Agreed.
Epc
A Copy Of The Epc Is Available Upon Request.
Service Charge Information
The Service Charge Is Currently £11.28 + Vat Per Square Foot Per Annum.
Legal Costs
Each Party Will Be Responsible For Covering Their Own Legal Costs Incurred In The Transaction.














































































































