Office
Office To Let Swan Valley Way
PROPERTY ID: 150135
PROPERTY TYPE
Office
STATUS
Available
SIZE
5,667 sq.ft
Key Features
Modern self contained building constructed in 2007
Prominent position fronting Swan Valley Way
Kitchenettes, meeting rooms and board room
Air conditioning and raised access floors
Suspended ceilings with inset LG7 and LED lighting
23 allocated parking spaces
Property Details
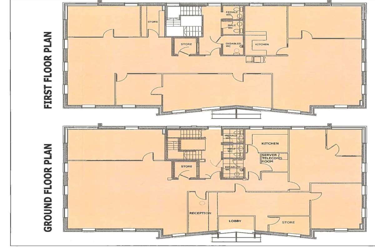
Primus House Is An Attractive Self-contained Office Building Constructed In 2007 With Excellent Allocated Car Parking. The Office Space Is Split Over Two Floors Providing A Mix Of Open Plan Space, Individual Offices And Meeting Rooms Together With Wcs And A Kitchenette On Each Floor. The Property Is Ideally Suited To Sole Occupancy But Could Also Allow Multiple Occupation On A Floor By Floor Basis.
About the Agent
LSH-Milton Keynes
See Agent's Other PropertiesOffice Unit
£110,507 / pa
£9,209 / month
Primus House,Cygnet Drive, Swan Valley Way, NN4 9BS
Office -
Available
5,667 sq ft
526 sqm
Show phone number























































































































