Industrial Unit
Industrial Unit To Let Plymouth
PROPERTY ID: 121335
PROPERTY TYPE
Industrial Unit
STATUS
Let Agreed
SIZE
10,122 sq.ft
Key Features
WIDE-SPAN PORTAL FRAMED WAREHOUSES
10,126sq.ft (940sq.m)
CITY CENTRE LOCATION WITH CLOSE LINKS TO A38 and M5
SECURE YARD WITH PARKING AND TURNING SPACE
VACANT POSSESSION WITH NEW LEASE
EPC RATINGS D78 & D99
Property Details
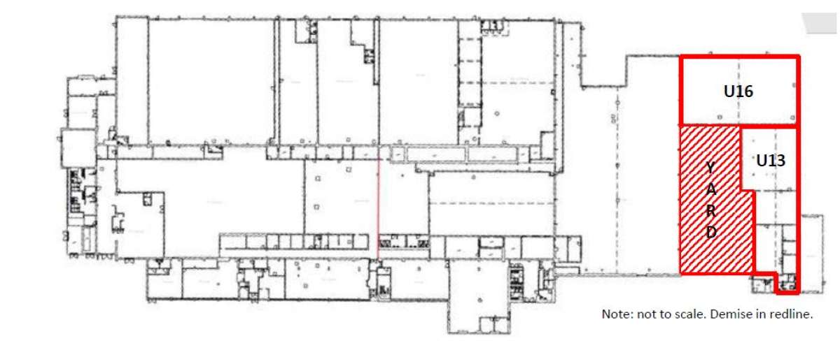
The Properties Comprise Wide-span Portal Framed Warehouses, With Hanging Fluorescent Strip-lighting. Unit 16 Is Fitted With 10 Level Dockers And Unit 13 Is Fitted With 2 Full Height Roller Shutter Doors. The Clear Span, With No Columns Has A Minimum Eaves Height To The Lowest Point Of 3.88m (max. Height To Eaves Is 5.15m). Externally, There Is A Yard Which Is Sufficient For Turning Articulated Lorries And Parking, And Which Will Be Securely Fenced. Epc: Unit 16 B47. Unit 13 D78<br/>
About the Agent
Listers Property Consultants Ltd
See Agent's Other PropertiesIndustrial Unit
£75,000 / pa
£6,250 / month
Unit 13/16 Burrington Business Park, Plymouth, PL5 3LX
Industrial Unit -
Let
10,122 sq ft
940 sqm
Show phone number













































































































